section

section

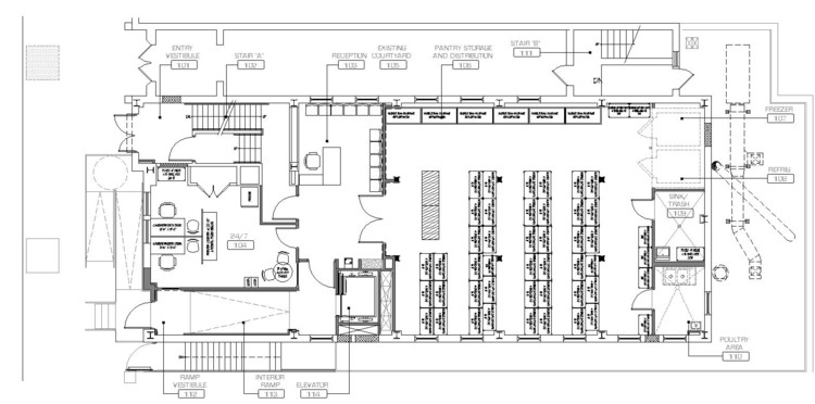
1st_fl_plan
1st floor plan
 
detail
facade detail
 
mAD

 

back